ZENORO HYBRID: Variabele speed | Efficiency | Silence

ZENORO HYBRID:
Power density | Efficiency | Silence

HYBRID marine generators

Zenoro Hybrid is the future of yachting and sailing: compact due to high power density,
quiet and environmentally friendly.

Zenoro is an early adapter in this technology. Several vessels are already sailing with our hybrid technology. Zenoro Hybrid can be customized with our Zenoro Premium line options and Xeamos DPF and/or SCR systems are available for IMO Tier III Emission level. A Permanent Magnet (PM) alternator manufacturer is selected to provide shipyards free choice on inverters, to guarantee reliable service and sailing.

Highlights

Emission | IMO exempted

IMO Tier II / IMO Tier III

Sound reduction | Equal or > than 20 dB(A) at 1 meter free field conditions

Vibrations | High-end isolators

PowerUp to 730 ekW 

Enclosure | Aluminium modular design

Class Certification | All mayor class societies

Engine controller
ComAp marine approved digital engine controller panel to control and engine protection. Compatible with any modern generator controller, allows REMOTE SPEED BIAS voltage or current control.

Many engine and generator functions are available for ship monitoring systems.
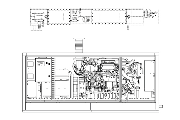
John Deere Marine engine
Modern factory marinated engine.
Quiet and low vibrations
Standard: single elastic, optional with rubber design
Optional: double elastic
with 2 layers of rubber design
Durable baseplate
Standard coated steel zincor baseplate, optional stainless steel baseplate for high durability and easy to clean.
Randax PM alternator
Water cooled
Sound enclosure
Sound enclosure with various air inlet/outlet panel positions.
Sandwich panels with non-combustible white top layer.
Xeamos after treatment system
Xeamos DEATS (SCR and Zero Soot) system, integrated heater or fuel burner.
Carrying frame
Sound enclosure with carrying frame for exhaust after treatment system.
Zenoro Hybrid Marine Generators

Engine controller

ComAp marine approved digital engine controller panel to control and engine protection. Compatible with any modern generator controller, allows REMOTE SPEED BIAS voltage or current control.

Many engine and generator functions are available for ship monitoring systems.

John Deere Marine Engine

Modern factory marinated engine.

Quiet and low vibrations

Standard: single elastic, optional with rubber design.
Optional: double elastic with 2 layers of rubber design.

Durable baseplate

Standard coated steel zincor baseplate, optional stainless steel baseplate for high durability and easy to clean.

Randax PM alternator

Water cooled.

Sound enclosure

Sound enclosure with various air inlet/outlet panel positions. Sandwich panels with non-combustible white top layer.

Xeamos after treatment system

Xeamos DEATS (SCR and Zero Soot) system, integrated heater or fuel burner.

Carrying frame

Sound enclosure with carrying frame for exhaust after treatment system.

More information?
Please contact us:
sales@zenoro.com
+31 (0)486 201 600

Zenoro offers state of the art heavy duty hybrid generator sets up to 750 ekW AC for both propulsion and/or onboard power demand. Generator sets configurations are possible with fixed speed, dual speed or variable speed settings.

Zenoro Hybrid products are engineered and assembled in the Netherlands, which enables a fast lead-time for both your new-built and refit projects. Please contact your local Zenoro partner for a quote, details and lead times.

Our generators are always factory load tested and optional classified by all classification societies as Lloyds, ABS, BV, GL-DNV, Rina and others.

The ‘sound enclosure’ is powder coated in RAL 9010 and created with aluminum extrusion profiles and heavy-duty corner blocks. Sandwich panels with sound insulation material, non-combustible top layer resistant for high temperatures fuel, water, oil proof. Latches on every removable panel allows easy service. For major service jobs our sound-enclosure offers easy disassembly and assembly. Esthetic, Stiffness and robust design fulfills a ‘’yacht’’ look and feel. Panels are available in zincor or full aluminium.

  • Air inlet box and air outlet box
  • Air inlet and air outlet, on request at customized positions, both equipped with smart coulisse design, double or single coulisse.


A brushless electrical fan is integrated in the design of sound enclosure, to remove radiated heat from the engine.

A carrying frame for an on top located Exhaust After Treatment systems (DPF and/or SCR) from our partner Xeamos can be opted, which allows easy integration, esthetic design and easy access for service. Both electrical and fuel burner DPF system can be integrated in the design.

We provide our optimum enclosure design, based on 10 years of experience as a manufacturer of generator sets. Noise levels are available on request.

  • Standard: optimum soft 40 shore rubber mounts.
    On request: rubber design mounts for single and double elastic mounting, for ultimate comfort.
  • A unique divider / slide plate system separates and controls the engine (hot) and alternator (colder) area. Therefore, no electrical fan is required. Air outlet and inlet position avoid recirculation. 

Standard durable sensors are used for oil temperature and loss of coolant. Extra add on sensors are available for all classification requirements and/or the comfort of the crew on board.

Water, fuel, exhaust and electrical connections can be selected in standard or customized position (for example located in the baseplate).

Waste heat recovery can be built into the sound box for more efficient energy use and a smaller footprint.

To allow an easy integration per layout of your yacht, we can arrange remote generator sets. These sets contain mirrored fuel filters, a loose controller box and a mirrored variant of the exhaust after treatment system, located on top of the generator set.

PM machine cooling circuit can be integrated with the engine raw water circuit by Bowman Heat Exchanger or an equivalent, small expansion tank for cooling water circuit including murphy switch. PM machine coolant and temperature monitoring.

Our hybrid range